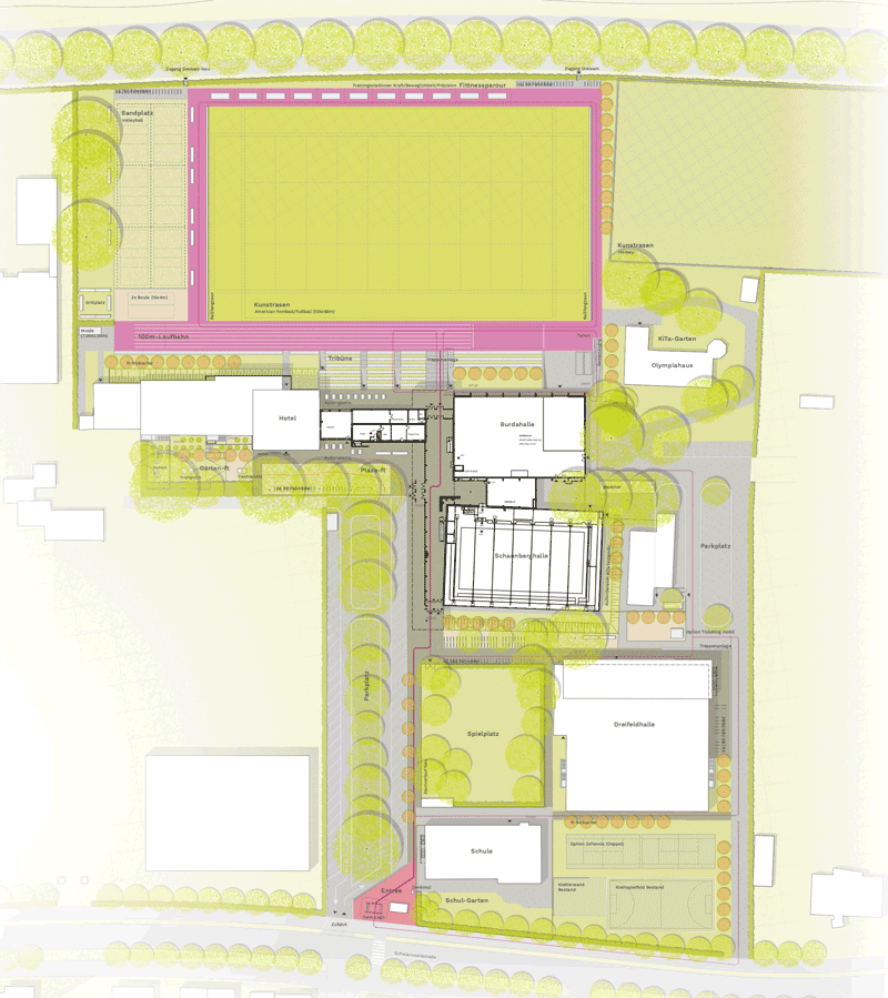
Spielarena FT 1844, Freiburg

Neues Freiraumkonzept

Spielarena FT 1844, Freiburg

Ein neuer Spielplatz für die Freiburger Turnerschaft Für den neuen Spielplatz auf dem FT-Gelände wird da Thema Sport in Form einer Spielarena umgesetzt. Die Mitte der Arena ist ganz dem Spiel gewidmet. Ein Sandspielbereich und diverse Kletter-, Schaukel- und Rutschmöglichkeiten bieten für die unterschiedlichen Altersklassen sportliche Herausforderungen.

Bauherr: Freiburger Turnerschaft von 1844 e.V.
Projektstatus: Fertigstellung 2021
Fläche: 2000 m²
Die Spielarena aus der Vogelperspektive

Die Spielarena aus der Vogelperspektive

LeitideeSpielarena mit umliegender Laufbahn als neues charakteristisches Thema und Zentrum der aktiven MitteEinfassung der Arena im Norden und Süden über TopografieLaufbahn

Leitidee

Spielelemente Spielarena

Spielelemente Spielarena

Ansicht

Ansicht

Laufbahn

Eine Laufbahn umschließt die Mitte und kann mit dem Rad, Bobbycar oder den eigenen zwei Beinen genutzt werden. An den kurzen Seiten folgt die Laufbahn der ansteigenden Topographie und bringt Schwung in jedes Fahrzeug für den aktiven Spaß in der Dauerschlaufe. Die Topografie wird sowohl für die große Kletterwand und Hangrutsche genutzt und wird erlebbar. Eine dichte Bepflanzung aus Purpurweiden bietet nach außen einen Rahmen, räumlichen Schutz und Versteckmöglichkeiten.

Die Spielarena profitiert von den vielen schönen alten Bäumen, die nur punktuell durch Weitere ergänzt werden. 

Um die Wette laufen und fahren…Rennen, fahren, rutschen…

Um die Wette laufen und fahren…

Übersicht